Descriptif
VENTE EN COURS DE CONSTRUCTION
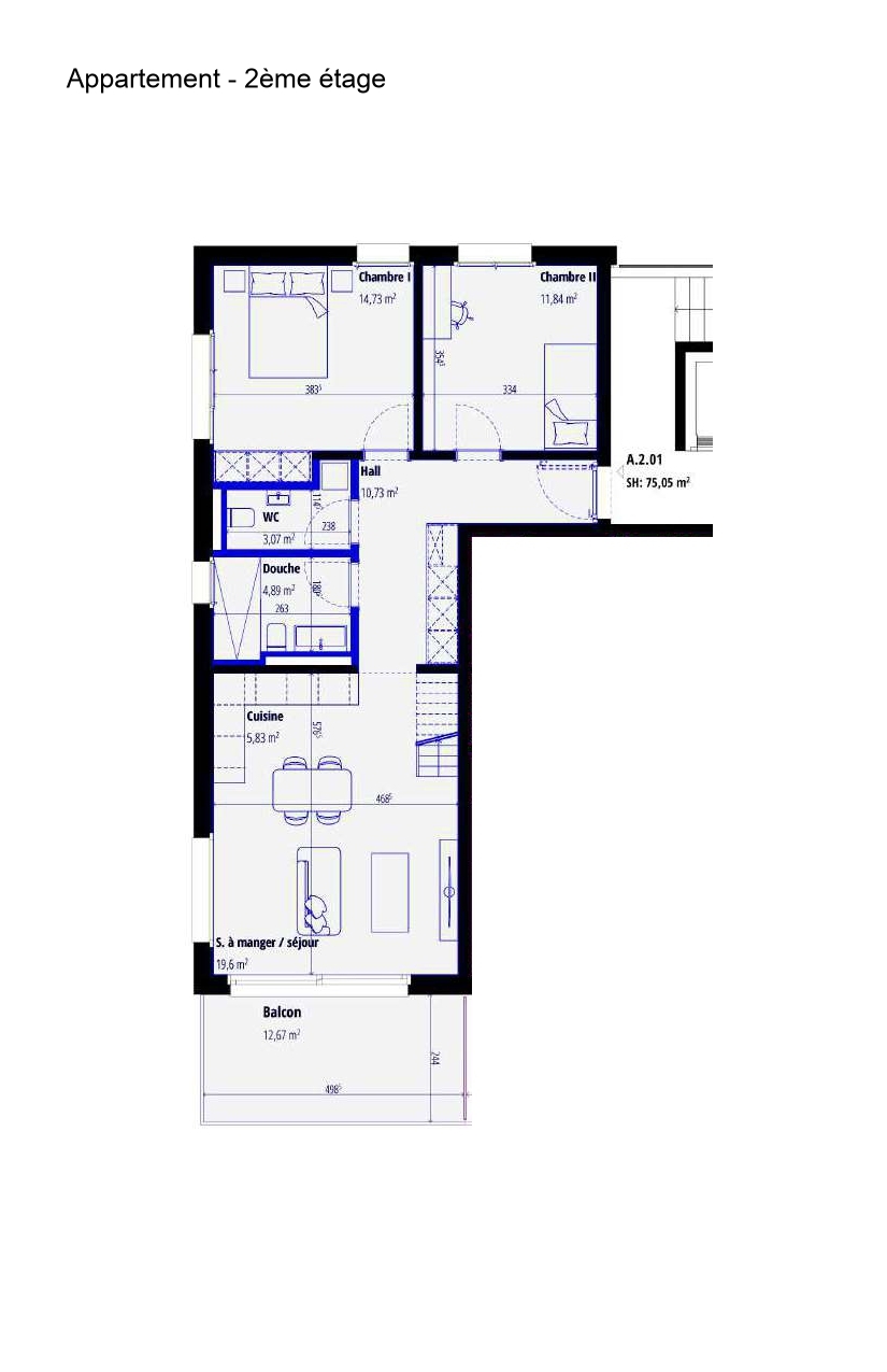
Situé au 2ème étage du bâtiment A, ce lumineux appartement de 3.5 pièces dispose d'une surface habitable d'env. 75 m² avec combles d'env. 16.50 m² et d'un balcon Sud d'env. 12.12 m².
Finitions au gré du preneur.
1 cave d'env. 10 m² complète ce bien.
1 place de parc extérieure en sus du prix
Disponibilité : fin printemps 2025
La promotion
Cette nouvelle construction s’inscrit dans un quartier en bordure de zone agricole, à la sortie Est du village d’Orsonnens. Entre Romont, Bulle et Fribourg.
« La Lorettaz » est représentée par 2 résidences A et B juxtaposées de 8 appartements chacune de conception moderne et réalisés avec des matériaux répondant aux exigences environnementales actuelles.
Destinés à toutes et tous, du 3.5 pièces au 5.5 pièces, de surfaces habitables généreuses et au profit d’une vue sur la campagne, les revêtements et les équipements intérieurs répondent à une demande de confort et d’aisance fonctionnelle.
La résidence, d’architecture élégante, profite d’aménagements extérieurs spacieux, disposés harmonieusement avec deux places de jeux, de couverts à voiture avec borne de recharge pour véhicules électriques, de places de parc extérieures, ainsi que de places vélos et motos.
Concilier environnement et bien-être individuel deviendra désormais possible au sein de ces deux belles résidences comprenant 8 appartements chacune.
Intéressez-vous à ce havre de paix dans ces espaces ensoleillés, situés dans un magnifique cadre campagnard de la Glâne, à 8 min de Romont.
Situé au 2ème étage du bâtiment A, ce lumineux appartement de 3.5 pièces dispose d'une surface habitable d'env. 75 m² avec combles d'env. 16.50 m² et d'un balcon Sud d'env. 12.12 m².
Finitions au gré du preneur.
1 cave d'env. 10 m² complète ce bien.
1 place de parc extérieure en sus du prix
Disponibilité : fin printemps 2025
La promotion
Cette nouvelle construction s’inscrit dans un quartier en bordure de zone agricole, à la sortie Est du village d’Orsonnens. Entre Romont, Bulle et Fribourg.
« La Lorettaz » est représentée par 2 résidences A et B juxtaposées de 8 appartements chacune de conception moderne et réalisés avec des matériaux répondant aux exigences environnementales actuelles.
Destinés à toutes et tous, du 3.5 pièces au 5.5 pièces, de surfaces habitables généreuses et au profit d’une vue sur la campagne, les revêtements et les équipements intérieurs répondent à une demande de confort et d’aisance fonctionnelle.
La résidence, d’architecture élégante, profite d’aménagements extérieurs spacieux, disposés harmonieusement avec deux places de jeux, de couverts à voiture avec borne de recharge pour véhicules électriques, de places de parc extérieures, ainsi que de places vélos et motos.
Concilier environnement et bien-être individuel deviendra désormais possible au sein de ces deux belles résidences comprenant 8 appartements chacune.
Intéressez-vous à ce havre de paix dans ces espaces ensoleillés, situés dans un magnifique cadre campagnard de la Glâne, à 8 min de Romont.
Situation
La commune de Villorsonnens, au cœur du district de la Glâne, est située à 8 minutes de Romont et à équidistance de Fribourg et Bulle à 20 minutes.
Dans le secteur d’Orsonnens, cette charmante localité dévoile une multitude d’atouts, dont une douceur de vivre propice au bien-être et un cadre de vie séduisant dans un environnement vert et villageois.
Plusieurs sociétés locales sportives et musicales y sont implantées.
Vos enfants seront scolarisés à l’école primaire de Villorsonnens située à 2 pas, dans le bâtiment de Grangécole qui regroupe toutes les classes de la 1H à la 8H. Ils pourront profiter d’un accueil extrascolaire avant et après l’école, ainsi que pendant la pause de midi. Dès leur 9H, ils rejoindront le Cycle d’Orientation de la Glâne situé à Romont.
Choisissez ce lieu de résidence stratégique et à l’abri de toutes nuisances, dans une ambiance saine et ensoleillée à seulement 8 km de la gare de Romont (axe Berne-Fribourg-Lausanne) et de toutes les commodités commerciales dans ce même chef–lieu de la Glâne.
Dans le secteur d’Orsonnens, cette charmante localité dévoile une multitude d’atouts, dont une douceur de vivre propice au bien-être et un cadre de vie séduisant dans un environnement vert et villageois.
Plusieurs sociétés locales sportives et musicales y sont implantées.
Vos enfants seront scolarisés à l’école primaire de Villorsonnens située à 2 pas, dans le bâtiment de Grangécole qui regroupe toutes les classes de la 1H à la 8H. Ils pourront profiter d’un accueil extrascolaire avant et après l’école, ainsi que pendant la pause de midi. Dès leur 9H, ils rejoindront le Cycle d’Orientation de la Glâne situé à Romont.
Choisissez ce lieu de résidence stratégique et à l’abri de toutes nuisances, dans une ambiance saine et ensoleillée à seulement 8 km de la gare de Romont (axe Berne-Fribourg-Lausanne) et de toutes les commodités commerciales dans ce même chef–lieu de la Glâne.
Présentation de la commune
Villorsonnens, dans le district de la Glâne dans le canton de Fribourg, réuni depuis 2001 les villages de Chavannes-sous-Orsonnens, Orsonnens, Villargiroud et Villarsiviriaux. La commune s'étend sur plus de 1'547 ha dont près des 2/3 sont des zones agricoles et forestières. 450 mètres d'altitude séparent le bas et le haut de la commune, Chavannes-sous-Orsonnens se situe à 680 mètres et le point culminant à 1'130 mètres, à Villarsiviriaux.
Surface (ha) : 1'547
Habitants : 1'441 (2018)
Surface (ha) : 1'547
Habitants : 1'441 (2018)
Transports
Gare de Romont (axe Berne-Lausanne-Genève) à 10 min en voiture.
Les transports publics fribourgeois (TPF) desservent le village par sa ligne 470 (Fribourg-Farvagny-Romont).
Bus scolaires.
Les transports publics fribourgeois (TPF) desservent le village par sa ligne 470 (Fribourg-Farvagny-Romont).
Bus scolaires.
Construction
Se sentir bien chez soi
Difficile de résister à l’atmosphère à la fois chaleureuse et moderne de nos intérieurs. L’élégance quant à elle se dessine à travers des lignes épurées, ainsi que des volumes maitrisés.
La douceur et le naturel des matériaux vous inviteront à retourner à l’essentiel : vous-même.
Vivre en harmonie avec la nature et vous-même ne nécessite plus de compromis.
Cette belle construction répondra à vos besoins en terme d’énergie et d’écologie.
Aménagements extérieurs
Vous pourrez profiter d’une longue exposition sur votre balcon, terrasse ou jardin.
La résidence, d’architecture élégante, profite d’aménagements extérieurs spacieux, disposés harmonieusement avec 2 places de jeux, 7 places de parc couvertes avec borne de recharge pour véhicules électriques, 17 places de parc extérieures, ainsi que des places vélos et 4 places motos.
Difficile de résister à l’atmosphère à la fois chaleureuse et moderne de nos intérieurs. L’élégance quant à elle se dessine à travers des lignes épurées, ainsi que des volumes maitrisés.
La douceur et le naturel des matériaux vous inviteront à retourner à l’essentiel : vous-même.
Vivre en harmonie avec la nature et vous-même ne nécessite plus de compromis.
Cette belle construction répondra à vos besoins en terme d’énergie et d’écologie.
Aménagements extérieurs
Vous pourrez profiter d’une longue exposition sur votre balcon, terrasse ou jardin.
La résidence, d’architecture élégante, profite d’aménagements extérieurs spacieux, disposés harmonieusement avec 2 places de jeux, 7 places de parc couvertes avec borne de recharge pour véhicules électriques, 17 places de parc extérieures, ainsi que des places vélos et 4 places motos.
Sous-sol
1 x Cave d'env. 10 m²
2ème niveau
1 x Hall de distribution avec armoires encastrées
1 x Séjour
1 x Cuisine ouverte agencée et équipée avec accès direct au balcon
2 x Chambres
1 x Salle de douche avec douche, lavabo et WC
1 x WC visiteurs avec emplacement pour la pose d'un lave-linge et d'un sèche-linge
1 x Balcon d' env. 12 m²
1 x Séjour
1 x Cuisine ouverte agencée et équipée avec accès direct au balcon
2 x Chambres
1 x Salle de douche avec douche, lavabo et WC
1 x WC visiteurs avec emplacement pour la pose d'un lave-linge et d'un sèche-linge
1 x Balcon d' env. 12 m²
Combles
1 x Surface d'env. 16.50 m² accessible par escalier et ajourée par 2 velux
Remarques
1 x Place de parc extérieure incluse dans le prix
Commodités
Environnement
- Quartier de villas
- Verdoyant
- Arrêt de bus
- Ecole primaire
Extérieur
- Balcon(s)
- Place(s) de parc visiteur(s)
Intérieur
- Ascenseur
- Cuisine ouverte
- WC visiteurs
- Armoires encastrées
- Triple vitrage
- Lumineux
Equipement
- Cuisine équipée
- Cuisine agencée
- Buanderie privée
- Douche
- Fibre optique
Sol
- A choix
- Carrelage
- Parquet
Etat
- Neuf
Exposition
- Nord
- Sud
- Ouest
Ensoleillement
- Optimal
Vue
- Champêtre
Distances
Gare
2.7 km
Transports publics
154 m
Ecole primaire
90 m
Commerces
1.7 km
Restaurants
185 m










